9443 Ledgestone Rd, Lake Country, BC V4V 0A4
Toggle Navigation
Images
Floor Plans
Map
9443 Ledgestone Rd
Lake Country, BC V4V 0A4
Scroll to Content
Images
Slideshow
Photo Grid
Hide
Previous
Next
Show more
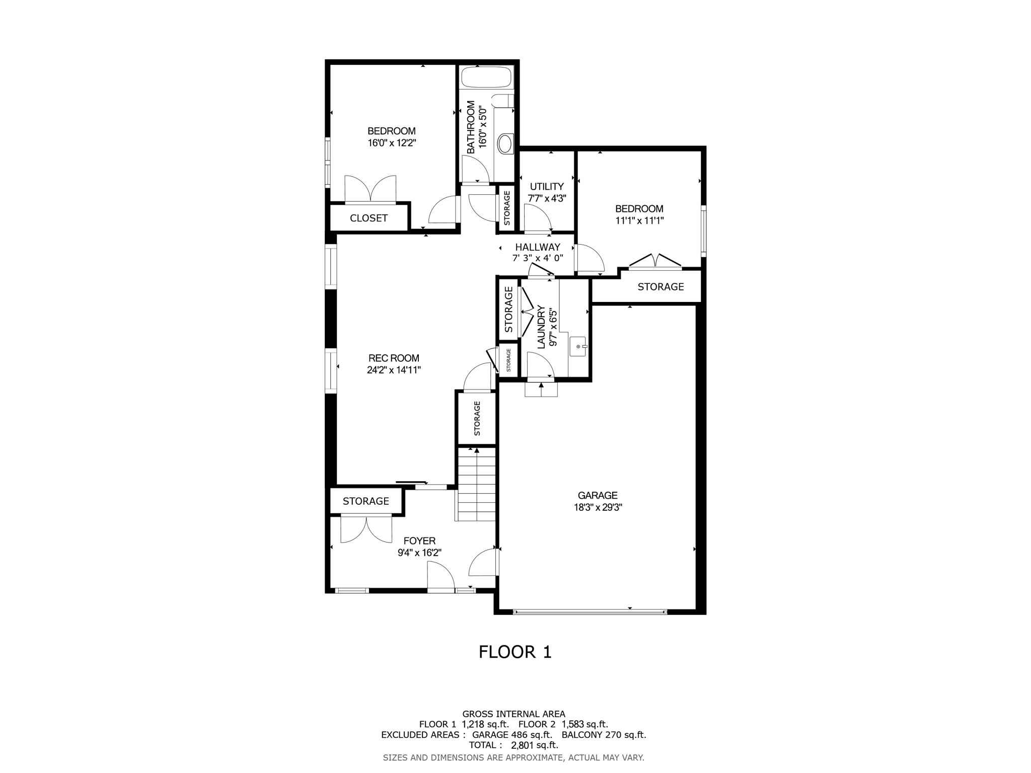
Floor Plans
Slideshow
Photo Grid
Hide
Previous
Next